Appraised Value | Assessed Value | |
Building Value | $ 186,100 | $ 186,100 |
Extra Features | $ 10,700 | $ 10,700 |
Outbuildings | $ 26,700 | $ 26,700 |
Land Value | $ 860,800 | $ 860,800 |
Totals | $ 1,084,300 | $ 1,084,300 |
2025
C.O.M.M. FD Tax (Commercial) $ 0 C.O.M.M. FD Tax (Residential) $ 1,246.95 Community Preservation Act Tax $ 177.08 Town Tax (Commercial) $ 0 Town Tax (Residential) $ 5,902.53 Total: $ 7,326.56 |
2024
C.O.M.M. FD Tax (Commercial) $ 0 C.O.M.M. FD Tax (Residential) $ 1,254.31 Community Preservation Act Tax $ 172.96 Town Tax (Commercial) $ 0 Town Tax (Residential) $ 5,765.46 Total: $ 7,192.73 |
Residential Exemption Received= $233,792 |
Residential Exemption Received= $214,313 |
Owner: | Sale Date | Book/Page: | Sale Price: |
GREENE, PATRICIA ANN | 1987-06-15 | 5757/0294 | $1 |
GREENE, PHILIP A JR | 1983-09-15 | 3858/0158 | $0 |
As Built Cards:Click card # to view: | Card #1 | |
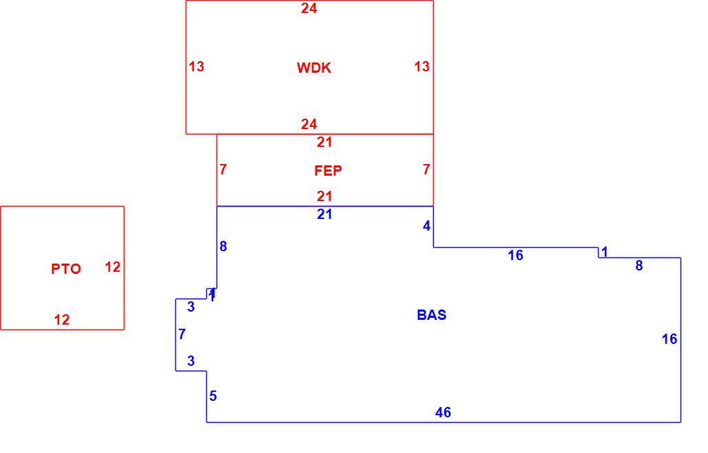
B2N | Barn-any 2nd story area | FPC | Open Porch Concrete Floor | REF | Reference Only |
BAS | First Floor, Living Area | FTS | Third Story Living Area (Finished) | SOL | Solarium |
BMT | Basement Area (Unfinished) | FUS | Second Story Living Area (Finished) | SPE | Pool Enclosure |
BRN | Barn | GAR | Garage | TQS | Three Quarters Story (Finished) |
CAN | Canopy | GAZ | Gazebo | UAT | Attic Area (Unfinished) |
CLP | Loading Platform | GRN | Greenhouse | UHS | Half Story (Unfinished) |
FAT | Attic Area (Finished) | GXT | Garage Extension Front | UST | Utility Area (Unfinished) |
FCP | Carport | KEN | Kennel | UTQ | Three Quarters Story (Unfinished) |
FEP | Enclosed Porch | MZ1 | Mezzanine, Unfinished | UUA | Unfinished Utility Attic |
FHS | Half Story (Finished) | PRG | Pergola | UUS | Full Upper 2nd Story (Unfinished) |
FOP | Open or Screened in Porch | PRT | Portico | WDK | Wood Deck |
PTO | Patio | ||||
Building |
Details |
Land |
|||
Building value | $ 186,100 | Bedrooms | 2 Bedrooms | USE CODE | 1010 |
Replacement Cost | $269,745 | Bathrooms | 1 Full-0 Half | Lot Size (Acres) | 0.48 |
Model | Residential | Total Rooms | 4 Rooms | Appraised Value | $ 860,800 |
Style | Ranch | Heat Fuel | Oil | Assessed Value | $ 860,800 |
Grade | Average | Heat Type | Hot Water | ||
Year Built | 1940 | AC Type | None | ||
Effective depreciation | 31 | Interior Floors | Carpet | ||
Stories | 1 Story | Interior Walls | Drywall | ||
Living Area sq/ft | 875 | Exterior Walls | Vinyl Siding | ||
Gross Area sq/ft | 1,478 | Roof Structure | Gable/Hip | ||
Roof Cover | Asph/F Gls/Cmp | ||||
Code | Description | Units/SQ ft | Appraised Value | Assessed Value |
FPL1 | Fireplace 1 story | 1 | $ 3,500 | $ 3,500 |
FGR2 | Garage- Avg-Wd Shingle | 528 | $ 16,400 | $ 16,400 |
WDCK | Wood Decking w/railings | 312 | $ 2,500 | $ 2,500 |
FEP | Enclosed porch-roof,ceiling | 147 | $ 7,200 | $ 7,200 |
PATF | Flagstone Pavers on conc | 144 | $ 3,600 | $ 3,600 |
DKPL | Pond Dock-Light | 1 | $ 4,200 | $ 4,200 |