
| Appraised Value | Assessed Value | |
| Building Value | $ 617,600 | $ 617,600 |
| Extra Features | $ 0 | $ 0 |
| Outbuildings | $ 2,500 | $ 2,500 |
| Land Value | $ 0 | $ 0 |
| Totals | $ 620,100 | $ 620,100 |
| 2025
Community Preservation Act Tax $ 129.10 Hyannis FD Tax (Commercial) $ 0 Hyannis FD Tax (Residential) $ 1,444.83 Town Tax (Commercial) $ 0 Town Tax (Residential) $ 4,303.49 Total: $ 5,877.42 |
2024
Community Preservation Act Tax $ 117.05 Hyannis FD Tax (Commercial) $ 0 Hyannis FD Tax (Residential) $ 1,408.08 Town Tax (Commercial) $ 0 Town Tax (Residential) $ 3,901.56 Total: $ 5,426.69 |
| Owner: | Sale Date | Book/Page: | Sale Price: |
| LOUX, MICHAEL & LOUX, MARY WIGGIN TRS | 2018-06-22 | 31360/0074 | $100 |
| LOUX, MICHAEL & MARY | 2016-12-30 | 30202/0349 | $314000 |
| HARVEY, THOMAS J & BARBARA A | 1999-12-10 | 12717/0056 | $125400 |
| CONSIGLI, GEORGE E | 1992-12-15 | 8387/0084 | $122500 |
| STARR, RICHARD N | 1983-08-15 | 3818/0222 | $104000 |
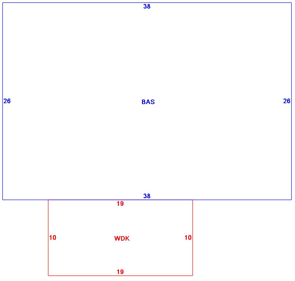
AsBuilt Card N/A

| B2N | Barn-any 2nd story area | FPC | Open Porch Concrete Floor | REF | Reference Only |
| BAS | First Floor, Living Area | FTS | Third Story Living Area (Finished) | SOL | Solarium |
| BMT | Basement Area (Unfinished) | FUS | Second Story Living Area (Finished) | SPE | Pool Enclosure |
| BRN | Barn | GAR | Garage | TQS | Three Quarters Story (Finished) |
| CAN | Canopy | GAZ | Gazebo | UAT | Attic Area (Unfinished) |
| CLP | Loading Platform | GRN | Greenhouse | UHS | Half Story (Unfinished) |
| FAT | Attic Area (Finished) | GXT | Garage Extension Front | UST | Utility Area (Unfinished) |
| FCP | Carport | KEN | Kennel | UTQ | Three Quarters Story (Unfinished) |
| FEP | Enclosed Porch | MZ1 | Mezzanine, Unfinished | UUA | Unfinished Utility Attic |
| FHS | Half Story (Finished) | PRG | Pergola | UUS | Full Upper 2nd Story (Unfinished) |
| FOP | Open or Screened in Porch | PRT | Portico | WDK | Wood Deck |
| PTO | Patio | ||||
Building |
Details |
Land |
|||
| Building value | $ 617,600 | Bedrooms | 3 Bedrooms | USE CODE | 102U |
| Replacement Cost | $726,551 | Bathrooms | 2 Full-0 Half | Lot Size (Acres) | 0 |
| Model | Res Condo | Total Rooms | 5 Rooms | Appraised Value | $ 0 |
| Style | Condominium | Heat Fuel | Gas | Assessed Value | $ 0 |
| Grade | Average | Heat Type | Hot Water | ||
| Year Built | 1971 | AC Type | None | ||
| Effective depreciation | 15 | Interior Floors | Carpet | ||
| Stories | 1 Story | Interior Walls | Drywall | ||
| Living Area sq/ft | 988 | Exterior Walls | Wood Shingle | ||
| Gross Area sq/ft | 1,178 | Roof Structure | Gable/Hip | ||
| Roof Cover | Asph/F Gls/Cmp | ||||
| Code | Description | Units/SQ ft | Appraised Value | Assessed Value |
| WDCK | Wood Decking w/railings | 190 | $ 2,500 | $ 2,500 |