
| Appraised Value | Assessed Value | |
| Building Value | $ 425,800 | $ 425,800 |
| Extra Features | $ 6,100 | $ 6,100 |
| Outbuildings | $ 0 | $ 0 |
| Land Value | $ 2,629,600 | $ 2,629,600 |
| Totals | $ 3,061,500 | $ 3,061,500 |
| 2025
Community Preservation Act Tax $ 637.40 Cotuit FD Tax (Residential) $ 4,316.72 Town Tax (Residential) $ 21,246.81 Total: $ 26,200.93 |
2024
Community Preservation Act Tax $ 609.73 Cotuit FD Tax (Residential) $ 3,759.25 Town Tax (Residential) $ 20,324.40 Total: $ 24,693.38 |
| Owner: | Sale Date | Book/Page: | Sale Price: |
| HOECK, JAMES T TR | 2016-02-12 | C208752/0 | $1700000 |
| KEULER, MARGARET C L, SCANNELL, SUSAN & | 2015-05-20 | C206272/0 | $0 |
| LLOYD, MARGARET H | 1980-06-15 | C82111/0 | $0 |
| As Built Cards:Click card # to view: | Card #1 | |
This property contains multiple sketches.

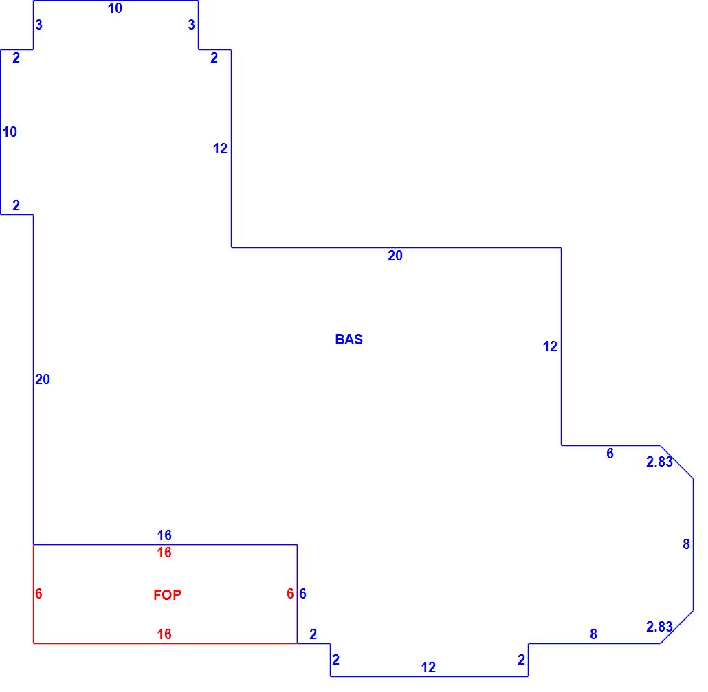
| B2N | Barn-any 2nd story area | FPC | Open Porch Concrete Floor | REF | Reference Only |
| BAS | First Floor, Living Area | FTS | Third Story Living Area (Finished) | SOL | Solarium |
| BMT | Basement Area (Unfinished) | FUS | Second Story Living Area (Finished) | SPE | Pool Enclosure |
| BRN | Barn | GAR | Garage | TQS | Three Quarters Story (Finished) |
| CAN | Canopy | GAZ | Gazebo | UAT | Attic Area (Unfinished) |
| CLP | Loading Platform | GRN | Greenhouse | UHS | Half Story (Unfinished) |
| FAT | Attic Area (Finished) | GXT | Garage Extension Front | UST | Utility Area (Unfinished) |
| FCP | Carport | KEN | Kennel | UTQ | Three Quarters Story (Unfinished) |
| FEP | Enclosed Porch | MZ1 | Mezzanine, Unfinished | UUA | Unfinished Utility Attic |
| FHS | Half Story (Finished) | PRG | Pergola | UUS | Full Upper 2nd Story (Unfinished) |
| FOP | Open or Screened in Porch | PRT | Portico | WDK | Wood Deck |
| PTO | Patio | ||||
Building |
Details |
Land |
|||
| Building value | $ 425,800 | Bedrooms | 1 Bedroom | USE CODE | 1090 |
| Replacement Cost | $295,916 | Bathrooms | 1 Full-1 Half | Lot Size (Acres) | 4.2 |
| Model | Residential | Total Rooms | 4 Rooms | Appraised Value | $ 2,629,600 |
| Style | Ranch | Heat Fuel | Electric | Assessed Value | $ 2,629,600 |
| Grade | Average | Heat Type | Elec Baseboard | ||
| Year Built | 1982 | AC Type | None | ||
| Effective depreciation | 18 | Interior Floors | Hardwood | ||
| Stories | 1 Story | Interior Walls | Drywall | ||
| Living Area sq/ft | 982 | Exterior Walls | Wood on Sheath | ||
| Gross Area sq/ft | 1,078 | Roof Structure | Gable/Hip | ||
| Roof Cover | Wood Shingle | ||||
| Code | Description | Units/SQ ft | Appraised Value | Assessed Value |
| FOP | Open Porch-roof-ceiling | 96 | $ 4,400 | $ 4,400 |
| FOP | Open Porch-roof-ceiling | 24 | $ 1,700 | $ 1,700 |
| SOLT | Solar Thermal Panels | 150 | $ 0 | $ 0 |