
| Appraised Value | Assessed Value | |
| Building Value | $ 418,400 | $ 418,400 | 
| Extra Features | $ 45,100 | $ 45,100 | 
| Outbuildings | $ 3,800 | $ 3,800 | 
| Land Value | $ 177,300 | $ 177,300 | 
| Totals | $ 644,600 | $ 644,600 | 
| 2025
																 C.O.M.M. FD Tax (Commercial) $ 0 C.O.M.M. FD Tax (Residential) $ 741.29 Community Preservation Act Tax $ 134.21 Town Tax (Commercial) $ 0 Town Tax (Residential) $ 4,473.52 Total: $ 5,349.02  | 
																
																
															
																
																
																2024
																 C.O.M.M. FD Tax (Commercial) $ 0 C.O.M.M. FD Tax (Residential) $ 718.62 Community Preservation Act Tax $ 123.59 Town Tax (Commercial) $ 0 Town Tax (Residential) $ 4,119.68 Total: $ 4,961.89  | 
																
															
																
																
															
| Owner: | Sale Date | Book/Page: | Sale Price: | 
| GUALLPA, ANGEL MARIA ASTUDILLO & YUQUILIMA, BLANCA DEL ROCIO AUCAPINA | 2024-11-08 | 36664/81 | $99 | 
| ASTUDILLO GUALLPA, ANGEL MARIA | 2022-10-25 | 35443/141 | $650000 | 
| STEWART, CRAIG W & FRUEAN, PATRICIA M | 1998-03-02 | 11255/0249 | $177500 | 
| BROWN, ANNE | 1994-11-15 | 9464/0159 | $150752 | 
| DAVIDSON, CARL TR | 1993-12-15 | 8930/0176 | $38000 | 
| PATRY, REAL M | 1989-09-15 | 6896/0339 | $1 | 
| PATRY, REAL M & NANCY J | 1984-12-15 | 4343/0187 | $23500 | 
| MCCULLOUGH, ROBERT & MADELEINE T | 1977-05-23 | 2513/0183 | $0 | 
| As Built Cards:Click card # to view: | Card #1 | | Card #2 | | 

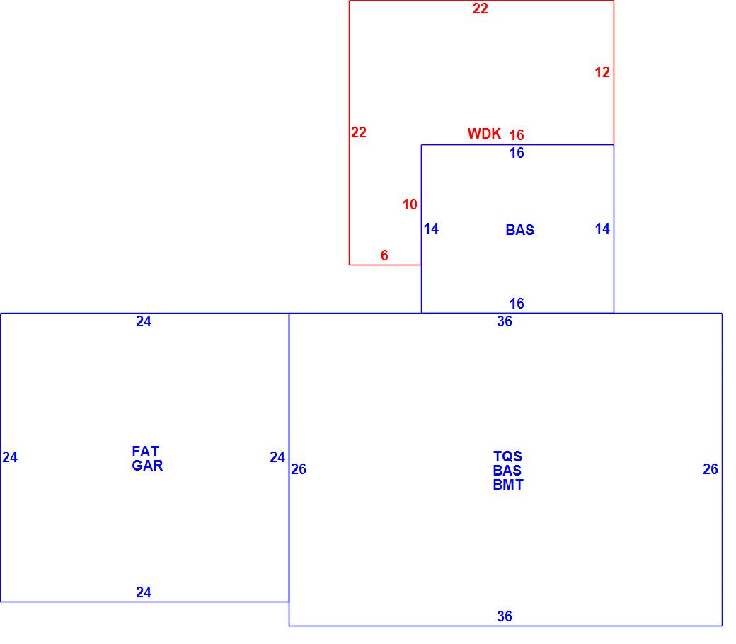
| B2N | Barn-any 2nd story area | FPC | Open Porch Concrete Floor | REF | Reference Only | 
| BAS | First Floor, Living Area | FTS | Third Story Living Area (Finished) | SOL | Solarium | 
| BMT | Basement Area (Unfinished) | FUS | Second Story Living Area (Finished) | SPE | Pool Enclosure | 
| BRN | Barn | GAR | Garage | TQS | Three Quarters Story (Finished) | 
| CAN | Canopy | GAZ | Gazebo | UAT | Attic Area (Unfinished) | 
| CLP | Loading Platform | GRN | Greenhouse | UHS | Half Story (Unfinished) | 
| FAT | Attic Area (Finished) | GXT | Garage Extension Front | UST | Utility Area (Unfinished) | 
| FCP | Carport | KEN | Kennel | UTQ | Three Quarters Story (Unfinished) | 
| FEP | Enclosed Porch | MZ1 | Mezzanine, Unfinished | UUA | Unfinished Utility Attic | 
| FHS | Half Story (Finished) | PRG | Pergola | UUS | Full Upper 2nd Story (Unfinished) | 
| FOP | Open or Screened in Porch | PRT | Portico | WDK | Wood Deck | 
| PTO | Patio | ||||
								Building | 
								
								Details | 
								
								Land | 
								|||
| Building value | $ 418,400 | Bedrooms | 4 Bedrooms | USE CODE | 1010 | 
| Replacement Cost | $480,965 | Bathrooms | 2 Full-0 Half | Lot Size (Acres) | 1.07 | 
| Model | Residential | Total Rooms | 7 Rooms | Appraised Value | $ 177,300 | 
| Style | Cape Cod | Heat Fuel | Gas | Assessed Value | $ 177,300 | 
| Grade | Average | Heat Type | Hot Water | ||
| Year Built | 1994 | AC Type | None | ||
| Effective depreciation | 13 | Interior Floors | CarpetHardwood | ||
| Stories | 1 1/2 Stories | Interior Walls | Drywall | ||
| Living Area sq/ft | 1,854 | Exterior Walls | Wood Shingle | ||
| Gross Area sq/ft | 4,508 | Roof Structure | Gable/Hip | ||
| Roof Cover | Asph/F Gls/Cmp | ||||
| Code | Description | Units/SQ ft | Appraised Value | Assessed Value | 
| FPL2 | Fireplace 1.5 stories | 1 | $ 5,200 | $ 5,200 | 
| WDC | Wood Deck w/o railings | 324 | $ 3,800 | $ 3,800 | 
| GAR | Attached Garage | 576 | $ 17,800 | $ 17,800 | 
| BMT | Basement-Unfinished | 936 | $ 22,100 | $ 22,100 |