Appraised Value | Assessed Value | |
Building Value | $ 349,100 | $ 349,100 |
Extra Features | $ 31,900 | $ 31,900 |
Outbuildings | $ 23,200 | $ 23,200 |
Land Value | $ 158,800 | $ 158,800 |
Totals | $ 563,000 | $ 563,000 |
2025
C.O.M.M. FD Tax (Commercial) $ 0 C.O.M.M. FD Tax (Residential) $ 647.45 Community Preservation Act Tax $ 117.22 Town Tax (Commercial) $ 0 Town Tax (Residential) $ 3,907.22 Total: $ 4,671.89 |
2024
C.O.M.M. FD Tax (Commercial) $ 0 C.O.M.M. FD Tax (Residential) $ 628.49 Community Preservation Act Tax $ 108.09 Town Tax (Commercial) $ 0 Town Tax (Residential) $ 3,602.97 Total: $ 4,339.55 |
Owner: | Sale Date | Book/Page: | Sale Price: |
BANKS, CAROLYN E | 2014-10-09 | C204660/0 | $225000 |
JPMORGAN CHASE BANK NA | 2014-06-06 | C203583/0 | $246500 |
DESMARAIS, DOROTHY J, ET AL | 2008-04-04 | C185617/0 | $320000 |
JARRETT, PHILLIP D & PATRICIA E | 1999-05-14 | C153153/0 | $138500 |
HOBAN, MARSILIA A | 1998-12-17 | C151286/0 | $112500 |
OREILLY, THOMAS J | 1993-08-15 | C131084/0 | $100 |
OREILLY, THOMAS J | 1983-04-15 | C91663/0 | $52900 |
SMITH, JAMES K TR | 1982-12-15 | C90612/0 | $18500 |
As Built Cards:Click card # to view: | Card #1 | | Card #2 | | Card #3 | |
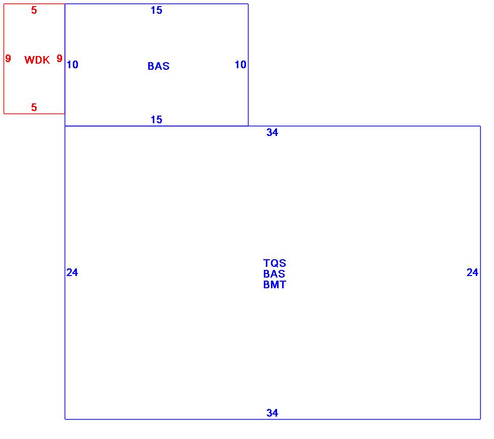
B2N | Barn-any 2nd story area | FPC | Open Porch Concrete Floor | REF | Reference Only |
BAS | First Floor, Living Area | FTS | Third Story Living Area (Finished) | SOL | Solarium |
BMT | Basement Area (Unfinished) | FUS | Second Story Living Area (Finished) | SPE | Pool Enclosure |
BRN | Barn | GAR | Garage | TQS | Three Quarters Story (Finished) |
CAN | Canopy | GAZ | Gazebo | UAT | Attic Area (Unfinished) |
CLP | Loading Platform | GRN | Greenhouse | UHS | Half Story (Unfinished) |
FAT | Attic Area (Finished) | GXT | Garage Extension Front | UST | Utility Area (Unfinished) |
FCP | Carport | KEN | Kennel | UTQ | Three Quarters Story (Unfinished) |
FEP | Enclosed Porch | MZ1 | Mezzanine, Unfinished | UUA | Unfinished Utility Attic |
FHS | Half Story (Finished) | PRG | Pergola | UUS | Full Upper 2nd Story (Unfinished) |
FOP | Open or Screened in Porch | PRT | Portico | WDK | Wood Deck |
PTO | Patio | ||||
Building |
Details |
Land |
|||
Building value | $ 349,100 | Bedrooms | 3 Bedrooms | USE CODE | 1010 |
Replacement Cost | $405,984 | Bathrooms | 2 Full-0 Half | Lot Size (Acres) | 0.52 |
Model | Residential | Total Rooms | 7 Rooms | Appraised Value | $ 158,800 |
Style | Gambrel | Heat Fuel | Oil | Assessed Value | $ 158,800 |
Grade | Average | Heat Type | Hot Air | ||
Year Built | 1983 | AC Type | None | ||
Effective depreciation | 14 | Interior Floors | CarpetHardwood | ||
Stories | 2 Stories | Interior Walls | Drywall | ||
Living Area sq/ft | 1,496 | Exterior Walls | Wood Shingle | ||
Gross Area sq/ft | 2,643 | Roof Structure | Gambrel | ||
Roof Cover | Asph/F Gls/Cmp | ||||
Code | Description | Units/SQ ft | Appraised Value | Assessed Value |
FPL3 | Fireplace 2 story | 1 | $ 6,000 | $ 6,000 |
SPL2 | Pool Vinyl | 576 | $ 16,700 | $ 16,700 |
PAT1 | Patio- Average | 620 | $ 2,900 | $ 2,900 |
BFA | Bsmt Fin-Avg | 408 | $ 6,100 | $ 6,100 |
WDC | Wood Deck w/o railings | 144 | $ 2,200 | $ 2,200 |
BMT | Basement-Unfinished | 816 | $ 19,800 | $ 19,800 |
WDC | Wood Deck w/o railings | 45 | $ 1,400 | $ 1,400 |