
| Appraised Value | Assessed Value | |
| Building Value | $ 125,900 | $ 125,900 |
| Extra Features | $ 0 | $ 0 |
| Outbuildings | $ 3,200 | $ 3,200 |
| Land Value | $ 325,700 | $ 325,700 |
| Totals | $ 454,800 | $ 454,800 |
| 2025
C.O.M.M. FD Tax (Commercial) $ 523.02 C.O.M.M. FD Tax (Residential) $ 0 Community Preservation Act Tax $ 83.23 Town Tax (Commercial) $ 2,774.28 Town Tax (Residential) $ 0 Total: $ 3,380.53 |
2024
C.O.M.M. FD Tax (Commercial) $ 523.28 C.O.M.M. FD Tax (Residential) $ 0 Community Preservation Act Tax $ 80.12 Town Tax (Commercial) $ 2,670.51 Town Tax (Residential) $ 0 Total: $ 3,273.91 |
| Owner: | Sale Date | Book/Page: | Sale Price: |
| 108 PARKER ROAD LLC | 2020-02-28 | C221965/0 | $430000 |
| HINCKLEY, HOWARD P | 2007-05-31 | C183232/0 | $1 |
| HINCKLEY, HERBERT L JR | 1990-06-15 | C120891/0 | $1 |
| HINCKLEY, HERBERT L JR | 1977-03-15 | C70086/0 | $0 |
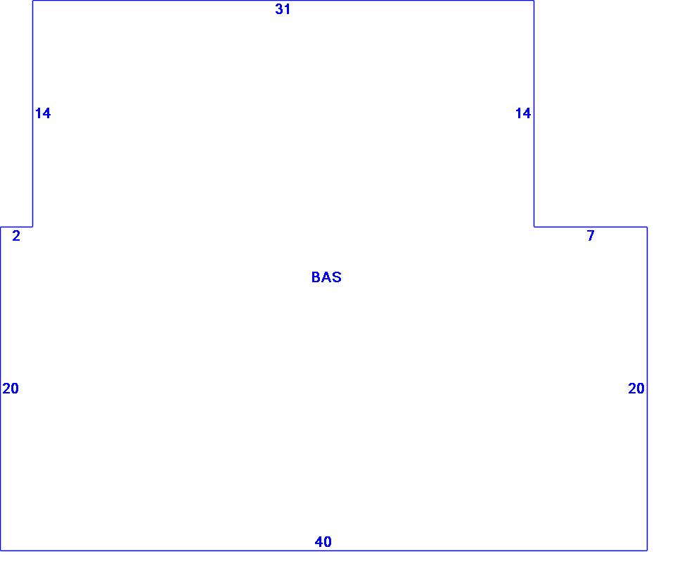
| As Built Cards:Click card # to view: | Card #1 | | Card #2 | | Card #3 | |

| B2N | Barn-any 2nd story area | FPC | Open Porch Concrete Floor | REF | Reference Only |
| BAS | First Floor, Living Area | FTS | Third Story Living Area (Finished) | SOL | Solarium |
| BMT | Basement Area (Unfinished) | FUS | Second Story Living Area (Finished) | SPE | Pool Enclosure |
| BRN | Barn | GAR | Garage | TQS | Three Quarters Story (Finished) |
| CAN | Canopy | GAZ | Gazebo | UAT | Attic Area (Unfinished) |
| CLP | Loading Platform | GRN | Greenhouse | UHS | Half Story (Unfinished) |
| FAT | Attic Area (Finished) | GXT | Garage Extension Front | UST | Utility Area (Unfinished) |
| FCP | Carport | KEN | Kennel | UTQ | Three Quarters Story (Unfinished) |
| FEP | Enclosed Porch | MZ1 | Mezzanine, Unfinished | UUA | Unfinished Utility Attic |
| FHS | Half Story (Finished) | PRG | Pergola | UUS | Full Upper 2nd Story (Unfinished) |
| FOP | Open or Screened in Porch | PRT | Portico | WDK | Wood Deck |
| PTO | Patio | ||||
Building |
Details |
Land |
|||
| Building value | $ 125,900 | Bedrooms | 00 | USE CODE | 3400 |
| Replacement Cost | $167,826 | Bathrooms | 0 Full-1 Half | Lot Size (Acres) | 0.12 |
| Model | Commercial | Total Rooms | 03 | Appraised Value | $ 325,700 |
| Style | Res Typ Com | Heat Fuel | Electric | Assessed Value | $ 325,700 |
| Grade | Average Minus | Heat Type | Elec Baseboard | ||
| Year Built | 1948 | AC Type | Central | ||
| Effective depreciation | 25 | Interior Floors | Carpet | ||
| Stories | 1 | Interior Walls | Plastered | ||
| Living Area sq/ft | 1,234 | Exterior Walls | Wood Shingle | ||
| Gross Area sq/ft | 1,234 | Roof Structure | Gable/Hip | ||
| Roof Cover | Asph/F Gls/Cmp | ||||
| Code | Description | Units/SQ ft | Appraised Value | Assessed Value |
| PAV1 | PAVING-ASPHALT | 1040 | $ 1,000 | $ 1,000 |
| SHED | Shed | 120 | $ 1,100 | $ 1,100 |
| SHED | Shed | 120 | $ 1,100 | $ 1,100 |