
| Appraised Value | Assessed Value | |
| Building Value | $ 382,100 | $ 382,100 |
| Extra Features | $ 50,500 | $ 50,500 |
| Outbuildings | $ 8,700 | $ 8,700 |
| Land Value | $ 211,300 | $ 211,300 |
| Totals | $ 652,600 | $ 652,600 |
| 2025
C.O.M.M. FD Tax (Commercial) $ 0 C.O.M.M. FD Tax (Residential) $ 750.49 Community Preservation Act Tax $ 135.87 Town Tax (Commercial) $ 0 Town Tax (Residential) $ 4,529.04 Total: $ 5,415.40 |
2024
C.O.M.M. FD Tax (Commercial) $ 0 C.O.M.M. FD Tax (Residential) $ 730.68 Community Preservation Act Tax $ 125.67 Town Tax (Commercial) $ 0 Town Tax (Residential) $ 4,188.84 Total: $ 5,045.19 |
| Owner: | Sale Date | Book/Page: | Sale Price: |
| GISCH, MICHAEL F & ANNIE R | 2024-12-09 | 36716/350 | $780000 |
| NEVES, RENATA S | 2023-12-01 | 36114/262 | $100 |
| NEVES, RENATA S & ROECKER, IRINEU M | 2017-09-05 | 30745/0162 | $427000 |
| VADASH, PAUL & CLAUDIA | 2010-12-17 | 25098/0231 | $255000 |
| WELLS FARGO BANK NA | 2010-12-08 | 25069/0240 | $350853 |
| MITCHELL, SCOTT R & KARLA D | 1999-10-01 | 12580/0159 | $150000 |
| MCGRAW, BRIAN | 1997-03-06 | 10639/0062 | $131000 |
| BURCHELL, M SHEILA | 1985-11-15 | 4819/0082 | $10000 |
| BURCHELL, RICHARD | 1975-11-18 | 2263/0291 | $0 |
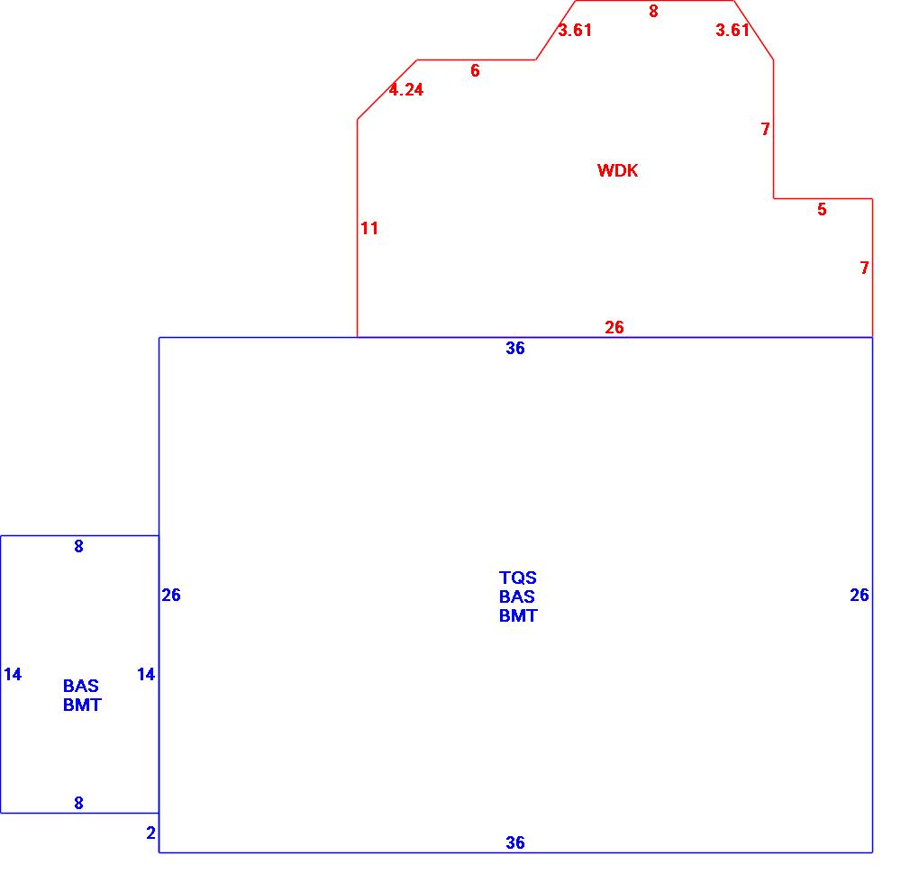
| As Built Cards:Click card # to view: | Card #1 | | Card #2 | |

| B2N | Barn-any 2nd story area | FPC | Open Porch Concrete Floor | REF | Reference Only |
| BAS | First Floor, Living Area | FTS | Third Story Living Area (Finished) | SOL | Solarium |
| BMT | Basement Area (Unfinished) | FUS | Second Story Living Area (Finished) | SPE | Pool Enclosure |
| BRN | Barn | GAR | Garage | TQS | Three Quarters Story (Finished) |
| CAN | Canopy | GAZ | Gazebo | UAT | Attic Area (Unfinished) |
| CLP | Loading Platform | GRN | Greenhouse | UHS | Half Story (Unfinished) |
| FAT | Attic Area (Finished) | GXT | Garage Extension Front | UST | Utility Area (Unfinished) |
| FCP | Carport | KEN | Kennel | UTQ | Three Quarters Story (Unfinished) |
| FEP | Enclosed Porch | MZ1 | Mezzanine, Unfinished | UUA | Unfinished Utility Attic |
| FHS | Half Story (Finished) | PRG | Pergola | UUS | Full Upper 2nd Story (Unfinished) |
| FOP | Open or Screened in Porch | PRT | Portico | WDK | Wood Deck |
| PTO | Patio | ||||
Building |
Details |
Land |
|||
| Building value | $ 382,100 | Bedrooms | 4 Bedrooms | USE CODE | 1010 |
| Replacement Cost | $465,916 | Bathrooms | 2 Full-0 Half | Lot Size (Acres) | 0.31 |
| Model | Residential | Total Rooms | 7 Rooms | Appraised Value | $ 211,300 |
| Style | Cape Cod | Heat Fuel | Gas | Assessed Value | $ 211,300 |
| Grade | Average | Heat Type | Hot Water | ||
| Year Built | 1962 | AC Type | Central | ||
| Effective depreciation | 18 | Interior Floors | HardwoodCeram Clay Til | ||
| Stories | 1 3/4 Stories | Interior Walls | Drywall | ||
| Living Area sq/ft | 1,656 | Exterior Walls | Wood Shingle | ||
| Gross Area sq/ft | 3,387 | Roof Structure | Gable/Hip | ||
| Roof Cover | Asph/F Gls/Cmp | ||||
| Code | Description | Units/SQ ft | Appraised Value | Assessed Value |
| BMT | Basement-Unfinished | 1048 | $ 22,500 | $ 22,500 |
| WDCV | Deck comp w vinyl railings | 354 | $ 8,700 | $ 8,700 |
| BFA1 | Bsmt Fin-Good-Partitioned | 1048 | $ 28,000 | $ 28,000 |