Appraised Value | Assessed Value | |
Building Value | $ 396,800 | $ 396,800 |
Extra Features | $ 29,700 | $ 29,700 |
Outbuildings | $ 13,000 | $ 13,000 |
Land Value | $ 158,800 | $ 158,800 |
Totals | $ 598,300 | $ 598,300 |
2025
C.O.M.M. FD Tax (Commercial) $ 0 C.O.M.M. FD Tax (Residential) $ 688.05 Community Preservation Act Tax $ 75.89 Town Tax (Commercial) $ 0 Town Tax (Residential) $ 2,529.69 Total: $ 3,293.63 |
2024
C.O.M.M. FD Tax (Commercial) $ 0 C.O.M.M. FD Tax (Residential) $ 667.23 Community Preservation Act Tax $ 72 Town Tax (Commercial) $ 0 Town Tax (Residential) $ 2,399.90 Total: $ 3,139.13 |
Residential Exemption Received= $233,792 |
Residential Exemption Received= $214,313 |
Owner: | Sale Date | Book/Page: | Sale Price: |
VICENTE, ALBERT L | 2001-08-20 | 14153/0142 | $1 |
VICENTE, MARIA GOMES | 1984-05-15 | 4107/0293 | $0 |
As Built Cards:Click card # to view: | Card #1 | |
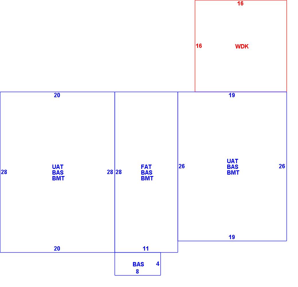
B2N | Barn-any 2nd story area | FPC | Open Porch Concrete Floor | REF | Reference Only |
BAS | First Floor, Living Area | FTS | Third Story Living Area (Finished) | SOL | Solarium |
BMT | Basement Area (Unfinished) | FUS | Second Story Living Area (Finished) | SPE | Pool Enclosure |
BRN | Barn | GAR | Garage | TQS | Three Quarters Story (Finished) |
CAN | Canopy | GAZ | Gazebo | UAT | Attic Area (Unfinished) |
CLP | Loading Platform | GRN | Greenhouse | UHS | Half Story (Unfinished) |
FAT | Attic Area (Finished) | GXT | Garage Extension Front | UST | Utility Area (Unfinished) |
FCP | Carport | KEN | Kennel | UTQ | Three Quarters Story (Unfinished) |
FEP | Enclosed Porch | MZ1 | Mezzanine, Unfinished | UUA | Unfinished Utility Attic |
FHS | Half Story (Finished) | PRG | Pergola | UUS | Full Upper 2nd Story (Unfinished) |
FOP | Open or Screened in Porch | PRT | Portico | WDK | Wood Deck |
PTO | Patio | ||||
Building |
Details |
Land |
|||
Building value | $ 396,800 | Bedrooms | 1 Bedroom | USE CODE | 1010 |
Replacement Cost | $440,835 | Bathrooms | 1 Full-1 Half | Lot Size (Acres) | 1.01 |
Model | Residential | Total Rooms | 4 Rooms | Appraised Value | $ 158,800 |
Style | Cape Cod | Heat Fuel | Gas | Assessed Value | $ 158,800 |
Grade | Average | Heat Type | Hot Air | ||
Year Built | 2002 | AC Type | Central | ||
Effective depreciation | 10 | Interior Floors | HardwoodCarpet | ||
Stories | Interior Walls | Drywall | |||
Living Area sq/ft | 1,440 | Exterior Walls | Vinyl Siding | ||
Gross Area sq/ft | 4,374 | Roof Structure | Gable/Hip | ||
Roof Cover | Asph/F Gls/Cmp | ||||
Code | Description | Units/SQ ft | Appraised Value | Assessed Value |
BMT | Basement-Unfinished | 1362 | $ 29,700 | $ 29,700 |
WDCK | Wood Decking w/railings | 256 | $ 5,000 | $ 5,000 |
SHD2 | Shed w/Elec | 336 | $ 8,000 | $ 8,000 |