
| Appraised Value | Assessed Value | |
| Building Value | $ 231,600 | $ 231,600 |
| Extra Features | $ 27,600 | $ 27,600 |
| Outbuildings | $ 2,800 | $ 2,800 |
| Land Value | $ 156,500 | $ 156,500 |
| Totals | $ 418,500 | $ 418,500 |
| 2025
C.O.M.M. FD Tax (Commercial) $ 0 C.O.M.M. FD Tax (Residential) $ 481.28 Community Preservation Act Tax $ 87.13 Town Tax (Commercial) $ 0 Town Tax (Residential) $ 2,904.39 Total: $ 3,472.80 |
2024
C.O.M.M. FD Tax (Commercial) $ 0 C.O.M.M. FD Tax (Residential) $ 482.79 Community Preservation Act Tax $ 83.03 Town Tax (Commercial) $ 0 Town Tax (Residential) $ 2,767.73 Total: $ 3,333.55 |
| Owner: | Sale Date | Book/Page: | Sale Price: |
| SILVA, HOLLY | 2018-03-23 | 31153/0277 | $238500 |
| NORMAN, SARA A | 2012-06-27 | 26451/0213 | $194000 |
| SCHREYER, JEREMIAH Q & BETTY ANNE | 1994-12-15 | 9484/0164 | $90000 |
| MACCHIONE, NANCY M & DEPASQUALE, LORRAI | 1993-11-15 | 8885/0135 | $100 |
| MACCHIONE, NANCY M | 1988-02-15 | 6149/0179 | $1 |
| MACCHIONE, FLORIANO & NANCY M | 1977-01-20 | 2457/0314 | $0 |
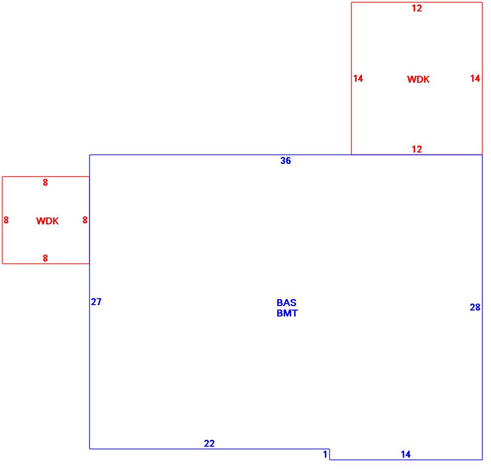
| As Built Cards:Click card # to view: | Card #1 | |

| B2N | Barn-any 2nd story area | FPC | Open Porch Concrete Floor | REF | Reference Only |
| BAS | First Floor, Living Area | FTS | Third Story Living Area (Finished) | SOL | Solarium |
| BMT | Basement Area (Unfinished) | FUS | Second Story Living Area (Finished) | SPE | Pool Enclosure |
| BRN | Barn | GAR | Garage | TQS | Three Quarters Story (Finished) |
| CAN | Canopy | GAZ | Gazebo | UAT | Attic Area (Unfinished) |
| CLP | Loading Platform | GRN | Greenhouse | UHS | Half Story (Unfinished) |
| FAT | Attic Area (Finished) | GXT | Garage Extension Front | UST | Utility Area (Unfinished) |
| FCP | Carport | KEN | Kennel | UTQ | Three Quarters Story (Unfinished) |
| FEP | Enclosed Porch | MZ1 | Mezzanine, Unfinished | UUA | Unfinished Utility Attic |
| FHS | Half Story (Finished) | PRG | Pergola | UUS | Full Upper 2nd Story (Unfinished) |
| FOP | Open or Screened in Porch | PRT | Portico | WDK | Wood Deck |
| PTO | Patio | ||||
Building |
Details |
Land |
|||
| Building value | $ 231,600 | Bedrooms | 2 Bedrooms | USE CODE | 1010 |
| Replacement Cost | $296,865 | Bathrooms | 1 Full-0 Half | Lot Size (Acres) | 0.48 |
| Model | Residential | Total Rooms | 4 Rooms | Appraised Value | $ 156,500 |
| Style | Ranch | Heat Fuel | Gas | Assessed Value | $ 156,500 |
| Grade | Average | Heat Type | Hot Air | ||
| Year Built | 1972 | AC Type | None | ||
| Effective depreciation | 22 | Interior Floors | Carpet | ||
| Stories | 1 Story | Interior Walls | Drywall | ||
| Living Area sq/ft | 986 | Exterior Walls | Wood Shingle | ||
| Gross Area sq/ft | 2,204 | Roof Structure | Gable/Hip | ||
| Roof Cover | Asph/F Gls/Cmp | ||||
| Code | Description | Units/SQ ft | Appraised Value | Assessed Value |
| FPL1 | Fireplace 1 story | 1 | $ 3,900 | $ 3,900 |
| WDCK | Wood Decking w/railings | 232 | $ 2,800 | $ 2,800 |
| BMT | Basement-Unfinished | 986 | $ 20,500 | $ 20,500 |
| BFA | Bsmt Fin-Avg | 234 | $ 3,200 | $ 3,200 |