Appraised Value | Assessed Value | |
Building Value | $ 324,800 | $ 324,800 |
Extra Features | $ 29,500 | $ 29,500 |
Outbuildings | $ 44,100 | $ 44,100 |
Land Value | $ 173,700 | $ 173,700 |
Totals | $ 572,100 | $ 572,100 |
2025
Community Preservation Act Tax $ 119.11 Town Tax (Commercial) $ 0 Town Tax (Residential) $ 3,970.37 W. Barnstable FD Tax (Commercial) $ 0 W. Barnstable FD Tax (Residential) $ 1,373.04 Total: $ 5,462.52 |
2024
Community Preservation Act Tax $ 71.48 Town Tax (Commercial) $ 0 Town Tax (Residential) $ 2,382.70 W. Barnstable FD Tax (Commercial) $ 0 W. Barnstable FD Tax (Residential) $ 691.52 Total: $ 3,145.70 |
Owner: | Sale Date | Book/Page: | Sale Price: |
HAMILTON, TERRY E TR | 2003-09-12 | 17631/0271 | $100 |
HAMILTON, THOMAS W & TERRY | 1990-04-06 | 7121/0126 | $325000 |
NORTON, STEVEN A | 1989-05-24 | 6748/0028 | $12500 |
NORTON, STEVEN A | 1986-12-18 | 5462/0240 | $12500 |
BARNARD, JOHN E | 1965-02-19 | 1289/0595 | $0 |
AsBuilt Card N/A
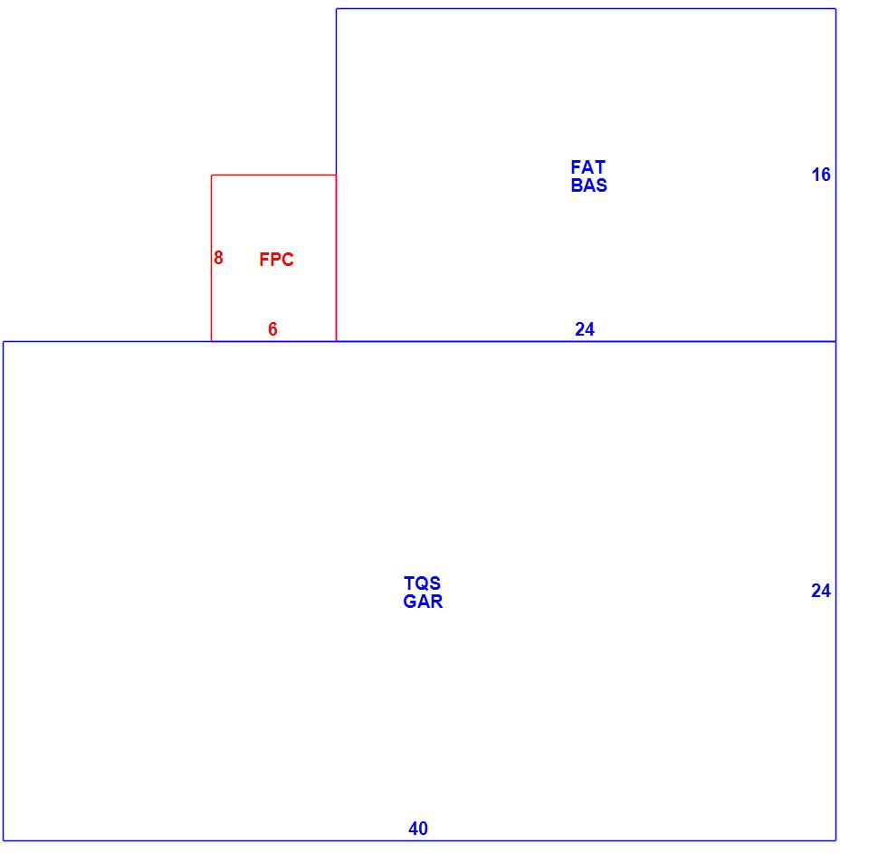
B2N | Barn-any 2nd story area | FPC | Open Porch Concrete Floor | REF | Reference Only |
BAS | First Floor, Living Area | FTS | Third Story Living Area (Finished) | SOL | Solarium |
BMT | Basement Area (Unfinished) | FUS | Second Story Living Area (Finished) | SPE | Pool Enclosure |
BRN | Barn | GAR | Garage | TQS | Three Quarters Story (Finished) |
CAN | Canopy | GAZ | Gazebo | UAT | Attic Area (Unfinished) |
CLP | Loading Platform | GRN | Greenhouse | UHS | Half Story (Unfinished) |
FAT | Attic Area (Finished) | GXT | Garage Extension Front | UST | Utility Area (Unfinished) |
FCP | Carport | KEN | Kennel | UTQ | Three Quarters Story (Unfinished) |
FEP | Enclosed Porch | MZ1 | Mezzanine, Unfinished | UUA | Unfinished Utility Attic |
FHS | Half Story (Finished) | PRG | Pergola | UUS | Full Upper 2nd Story (Unfinished) |
FOP | Open or Screened in Porch | PRT | Portico | WDK | Wood Deck |
PTO | Patio | ||||
Building |
Details |
Land |
|||
Building value | $ 324,800 | Bedrooms | 1 Bedroom | USE CODE | 1010 |
Replacement Cost | $360,903 | Bathrooms | 1 Full-0 Half | Lot Size (Acres) | 0.84 |
Model | Residential | Total Rooms | 4 Rooms | Appraised Value | $ 173,700 |
Style | Cape Cod | Heat Fuel | Gas | Assessed Value | $ 173,700 |
Grade | Average Plus | Heat Type | Hot Air | ||
Year Built | 2003 | AC Type | Central | ||
Effective depreciation | 10 | Interior Floors | Hardwood | ||
Stories | 1 1/2 Stories | Interior Walls | Drywall | ||
Living Area sq/ft | 1,066 | Exterior Walls | Wood Shingle | ||
Gross Area sq/ft | 2,736 | Roof Structure | Gable/Hip | ||
Roof Cover | Asph/F Gls/Cmp | ||||
Code | Description | Units/SQ ft | Appraised Value | Assessed Value |
TEN | Tennis Court 7200sf-Concr | 7200 | $ 28,500 | $ 28,500 |
SHD3 | Shed-High Qual | 248 | $ 4,500 | $ 4,500 |
PRG1 | Pergola-Avg | 84 | $ 1,100 | $ 1,100 |
PAT2 | Patio-Good | 236 | $ 2,100 | $ 2,100 |
PAT2 | Patio-Good | 254 | $ 2,300 | $ 2,300 |
GAR | Attached Garage | 960 | $ 27,000 | $ 27,000 |
FOPC | Open Prch-roof, ceiling | 48 | $ 2,500 | $ 2,500 |
GEN | Emergency Generator | 1 | $ 5,600 | $ 5,600 |