Appraised Value | Assessed Value | |
Building Value | $ 594,500 | $ 594,500 |
Extra Features | $ 17,100 | $ 17,100 |
Outbuildings | $ 2,100 | $ 2,100 |
Land Value | $ 578,000 | $ 578,000 |
Totals | $ 1,191,700 | $ 1,191,700 |
2025
C.O.M.M. FD Tax (Commercial) $ 0 C.O.M.M. FD Tax (Residential) $ 1,370.46 Community Preservation Act Tax $ 248.11 Town Tax (Commercial) $ 0 Town Tax (Residential) $ 8,270.40 Total: $ 9,888.97 |
2024
C.O.M.M. FD Tax (Commercial) $ 0 C.O.M.M. FD Tax (Residential) $ 1,382.60 Community Preservation Act Tax $ 237.78 Town Tax (Commercial) $ 0 Town Tax (Residential) $ 7,926.14 Total: $ 9,546.52 |
Owner: | Sale Date | Book/Page: | Sale Price: |
CONDINHO, CRAIG H TR | 2013-02-08 | 27119/0131 | $330000 |
CALLAHAN, RICHARD P TR | 2008-11-07 | 23257/0148 | $1 |
CALLAHAN, RICHARD P & HOSTETTER, PRISCIL | 1994-01-15 | 8989/0340 | $143820 |
BBX REAL ESTATE CORP | 1993-06-15 | 8614/0139 | $152000 |
SAURO, DAVID A & JANICE T | 1989-03-15 | 6682/0018 | $300000 |
FRANCO, NICHOLAS D | 1986-11-15 | 5403/0030 | $315000 |
RICH, JAMES M | 1985-07-15 | 4613/0261 | $210000 |
FITZPATRICK, DANIEL F ETA | 1982-10-15 | 3594/0013 | $129000 |
As Built Cards:Click card # to view: | Card #1 | | Card #2 | |
This property contains multiple sketches.
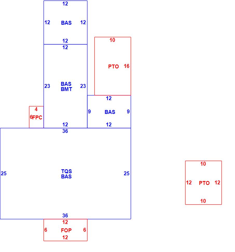
B2N | Barn-any 2nd story area | FPC | Open Porch Concrete Floor | REF | Reference Only |
BAS | First Floor, Living Area | FTS | Third Story Living Area (Finished) | SOL | Solarium |
BMT | Basement Area (Unfinished) | FUS | Second Story Living Area (Finished) | SPE | Pool Enclosure |
BRN | Barn | GAR | Garage | TQS | Three Quarters Story (Finished) |
CAN | Canopy | GAZ | Gazebo | UAT | Attic Area (Unfinished) |
CLP | Loading Platform | GRN | Greenhouse | UHS | Half Story (Unfinished) |
FAT | Attic Area (Finished) | GXT | Garage Extension Front | UST | Utility Area (Unfinished) |
FCP | Carport | KEN | Kennel | UTQ | Three Quarters Story (Unfinished) |
FEP | Enclosed Porch | MZ1 | Mezzanine, Unfinished | UUA | Unfinished Utility Attic |
FHS | Half Story (Finished) | PRG | Pergola | UUS | Full Upper 2nd Story (Unfinished) |
FOP | Open or Screened in Porch | PRT | Portico | WDK | Wood Deck |
PTO | Patio | ||||
Building |
Details |
Land |
|||
Building value | $ 594,500 | Bedrooms | 5 Bedrooms | USE CODE | 1110 |
Replacement Cost | $529,157 | Bathrooms | 2 Full-0 Half | Lot Size (Acres) | 1.29 |
Model | Residential | Total Rooms | 8 Rooms | Appraised Value | $ 578,000 |
Style | Conventional | Heat Fuel | Oil | Assessed Value | $ 578,000 |
Grade | Average | Heat Type | Hot Water | ||
Year Built | 1791 | AC Type | None | ||
Effective depreciation | 31 | Interior Floors | HardwoodCarpet | ||
Stories | 1 3/4 Stories | Interior Walls | Plastered | ||
Living Area sq/ft | 2,013 | Exterior Walls | Wood Shingle | ||
Gross Area sq/ft | 2,980 | Roof Structure | Gable/Hip | ||
Roof Cover | Asph/F Gls/Cmp | ||||
Code | Description | Units/SQ ft | Appraised Value | Assessed Value |
PAT2 | Patio-Good | 280 | $ 2,000 | $ 2,000 |
FOP | Open Porch-roof-ceiling | 72 | $ 2,800 | $ 2,800 |
BMT | Basement-Unfinished | 276 | $ 7,500 | $ 7,500 |
FOPC | Open Prch-roof, ceiling | 24 | $ 1,100 | $ 1,100 |
SHED | Shed | 140 | $ 100 | $ 100 |
FEP | Enclosed porch-roof,ceiling | 112 | $ 5,700 | $ 5,700 |