
| Appraised Value | Assessed Value | |
| Building Value | $ 261,100 | $ 261,100 |
| Extra Features | $ 50,900 | $ 50,900 |
| Outbuildings | $ 5,600 | $ 5,600 |
| Land Value | $ 249,300 | $ 249,300 |
| Totals | $ 566,900 | $ 566,900 |
| 2025
C.O.M.M. FD Tax (Commercial) $ 0 C.O.M.M. FD Tax (Residential) $ 651.94 Community Preservation Act Tax $ 118.03 Town Tax (Commercial) $ 0 Town Tax (Residential) $ 3,934.29 Total: $ 4,704.26 |
2024
C.O.M.M. FD Tax (Commercial) $ 0 C.O.M.M. FD Tax (Residential) $ 650.53 Community Preservation Act Tax $ 111.88 Town Tax (Commercial) $ 0 Town Tax (Residential) $ 3,729.32 Total: $ 4,491.73 |
| Owner: | Sale Date | Book/Page: | Sale Price: |
| FITZPATRICK, JAMES C & TRACEY M | 2017-01-12 | 30229/0108 | $340000 |
| LAWLER, HOWARD B | 2016-08-15 | 29860/0060 | $1 |
| LAWLER, HOWARD B | 2015-04-30 | 28835/0114 | $1 |
| LAWLER, HOWARD B | 1994-01-15 | 8994/0274 | $102250 |
| HIGGINS, EILEEN A | 1981-07-29 | 3332/0092 | $0 |
| As Built Cards:Click card # to view: | Card #1 | |

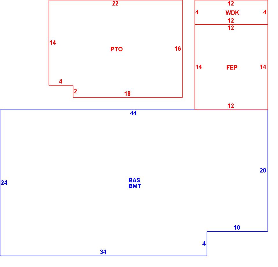
| B2N | Barn-any 2nd story area | FPC | Open Porch Concrete Floor | REF | Reference Only |
| BAS | First Floor, Living Area | FTS | Third Story Living Area (Finished) | SOL | Solarium |
| BMT | Basement Area (Unfinished) | FUS | Second Story Living Area (Finished) | SPE | Pool Enclosure |
| BRN | Barn | GAR | Garage | TQS | Three Quarters Story (Finished) |
| CAN | Canopy | GAZ | Gazebo | UAT | Attic Area (Unfinished) |
| CLP | Loading Platform | GRN | Greenhouse | UHS | Half Story (Unfinished) |
| FAT | Attic Area (Finished) | GXT | Garage Extension Front | UST | Utility Area (Unfinished) |
| FCP | Carport | KEN | Kennel | UTQ | Three Quarters Story (Unfinished) |
| FEP | Enclosed Porch | MZ1 | Mezzanine, Unfinished | UUA | Unfinished Utility Attic |
| FHS | Half Story (Finished) | PRG | Pergola | UUS | Full Upper 2nd Story (Unfinished) |
| FOP | Open or Screened in Porch | PRT | Portico | WDK | Wood Deck |
| PTO | Patio | ||||
Building |
Details |
Land |
|||
| Building value | $ 261,100 | Bedrooms | 3 Bedrooms | USE CODE | 1010 |
| Replacement Cost | $322,407 | Bathrooms | 1 Full-0 Half | Lot Size (Acres) | 0.23 |
| Model | Residential | Total Rooms | 5 Rooms | Appraised Value | $ 249,300 |
| Style | Ranch | Heat Fuel | Gas | Assessed Value | $ 249,300 |
| Grade | Average | Heat Type | Hot Water | ||
| Year Built | 1969 | AC Type | Central | ||
| Effective depreciation | 19 | Interior Floors | CarpetVinyl/Asphalt | ||
| Stories | 1 Story | Interior Walls | Drywall | ||
| Living Area sq/ft | 1,016 | Exterior Walls | Wood Shingle | ||
| Gross Area sq/ft | 2,592 | Roof Structure | Gable/Hip | ||
| Roof Cover | Asph/F Gls/Cmp | ||||
| Code | Description | Units/SQ ft | Appraised Value | Assessed Value |
| FPL1 | Fireplace 1 story | 1 | $ 4,100 | $ 4,100 |
| BGAR | Bsmt Garage | 1 | $ 1,900 | $ 1,900 |
| WDCK | Wood Decking w/railings | 48 | $ 1,700 | $ 1,700 |
| FEP | Enclosed porch-roof,ceiling | 168 | $ 9,200 | $ 9,200 |
| BMT | Basement-Unfinished | 1016 | $ 21,700 | $ 21,700 |
| PAT2 | Patio-Good | 344 | $ 3,300 | $ 3,300 |
| SHED | Shed | 64 | $ 600 | $ 600 |
| BFA1 | Bsmt Fin-Good-Partitioned | 532 | $ 14,000 | $ 14,000 |