
| Appraised Value | Assessed Value | |
| Building Value | $ 201,300 | $ 201,300 |
| Extra Features | $ 21,500 | $ 21,500 |
| Outbuildings | $ 7,400 | $ 7,400 |
| Land Value | $ 146,700 | $ 146,700 |
| Totals | $ 376,900 | $ 376,900 |
| 2025
C.O.M.M. FD Tax (Commercial) $ 0 C.O.M.M. FD Tax (Residential) $ 433.44 Community Preservation Act Tax $ 78.47 Town Tax (Commercial) $ 0 Town Tax (Residential) $ 2,615.69 Total: $ 3,127.60 |
2024
C.O.M.M. FD Tax (Commercial) $ 0 C.O.M.M. FD Tax (Residential) $ 432.45 Community Preservation Act Tax $ 74.37 Town Tax (Commercial) $ 0 Town Tax (Residential) $ 2,479.12 Total: $ 2,985.94 |
| Owner: | Sale Date | Book/Page: | Sale Price: |
| SHRESTHA, SANTOSH K | 2024-10-17 | 36622/233 | $445000 |
| BARRETT, JUDITH M ET AL | 2024-01-12 | 36622/231 | $0 |
| BARRETT, PATRICIA | 2006-02-03 | 20712/0133 | $1 |
| BARRETT, PATRICIA | 2002-10-01 | 15678/0113 | $232000 |
| SHEA, BARBARA ANN | 1993-12-27 | 8969/0027 | $74000 |
| TALLMAN, GREGG & DREW | 1993-08-15 | P0963EP1/0 | $1 |
| TALLMAN, BEATRICE | 1971-09-02 | 1525/1116 | $0 |
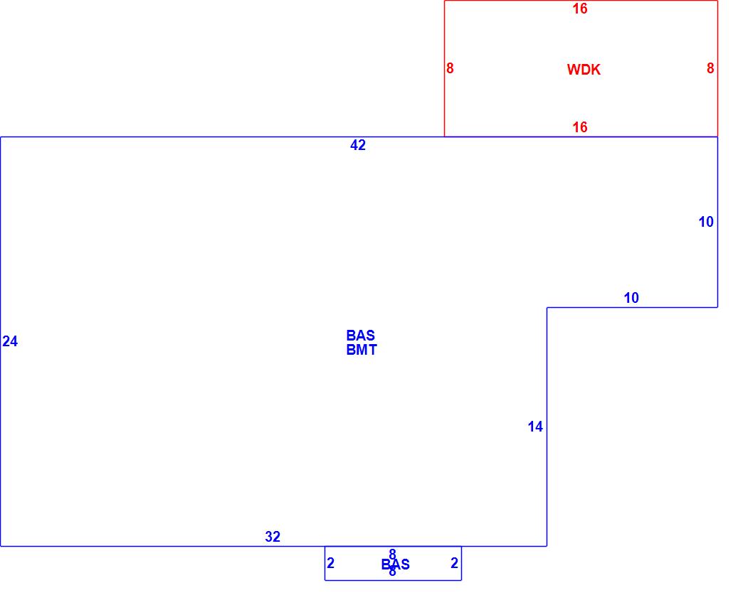
AsBuilt Card N/A

| B2N | Barn-any 2nd story area | FPC | Open Porch Concrete Floor | REF | Reference Only |
| BAS | First Floor, Living Area | FTS | Third Story Living Area (Finished) | SOL | Solarium |
| BMT | Basement Area (Unfinished) | FUS | Second Story Living Area (Finished) | SPE | Pool Enclosure |
| BRN | Barn | GAR | Garage | TQS | Three Quarters Story (Finished) |
| CAN | Canopy | GAZ | Gazebo | UAT | Attic Area (Unfinished) |
| CLP | Loading Platform | GRN | Greenhouse | UHS | Half Story (Unfinished) |
| FAT | Attic Area (Finished) | GXT | Garage Extension Front | UST | Utility Area (Unfinished) |
| FCP | Carport | KEN | Kennel | UTQ | Three Quarters Story (Unfinished) |
| FEP | Enclosed Porch | MZ1 | Mezzanine, Unfinished | UUA | Unfinished Utility Attic |
| FHS | Half Story (Finished) | PRG | Pergola | UUS | Full Upper 2nd Story (Unfinished) |
| FOP | Open or Screened in Porch | PRT | Portico | WDK | Wood Deck |
| PTO | Patio | ||||
Building |
Details |
Land |
|||
| Building value | $ 201,300 | Bedrooms | 2 Bedrooms | USE CODE | 1010 |
| Replacement Cost | $272,007 | Bathrooms | 1 Full-0 Half | Lot Size (Acres) | 0.23 |
| Model | Residential | Total Rooms | 5 Rooms | Appraised Value | $ 146,700 |
| Style | Ranch | Heat Fuel | Gas | Assessed Value | $ 146,700 |
| Grade | Average | Heat Type | Hot Air | ||
| Year Built | 1960 | AC Type | None | ||
| Effective depreciation | 26 | Interior Floors | CarpetHardwood | ||
| Stories | 1 Story | Interior Walls | Plastered | ||
| Living Area sq/ft | 884 | Exterior Walls | Wood Shingle | ||
| Gross Area sq/ft | 1,880 | Roof Structure | Gable/Hip | ||
| Roof Cover | Asph/F Gls/Cmp | ||||
| Code | Description | Units/SQ ft | Appraised Value | Assessed Value |
| FPL1 | Fireplace 1 story | 1 | $ 3,700 | $ 3,700 |
| FGR2 | Garage- Avg-Wd Shingle | 308 | $ 5,500 | $ 5,500 |
| WDCK | Wood Decking w/railings | 128 | $ 1,900 | $ 1,900 |
| BMT | Basement-Unfinished | 868 | $ 17,800 | $ 17,800 |