
| Appraised Value | Assessed Value | |
| Building Value | $ 241,600 | $ 241,600 |
| Extra Features | $ 30,300 | $ 30,300 |
| Outbuildings | $ 4,700 | $ 4,700 |
| Land Value | $ 146,700 | $ 146,700 |
| Totals | $ 423,300 | $ 423,300 |
| 2025
Community Preservation Act Tax $ 88.13 Hyannis FD Tax (Commercial) $ 0 Hyannis FD Tax (Residential) $ 986.29 Town Tax (Commercial) $ 0 Town Tax (Residential) $ 2,937.70 Total: $ 4,012.12 |
2024
Community Preservation Act Tax $ 83.29 Hyannis FD Tax (Commercial) $ 0 Hyannis FD Tax (Residential) $ 1,002 Town Tax (Commercial) $ 0 Town Tax (Residential) $ 2,776.38 Total: $ 3,861.67 |
| Owner: | Sale Date | Book/Page: | Sale Price: |
| RAPP, SUSAN TR | 2006-05-17 | 21010/0133 | $100 |
| SHEA, JOHN C | 2003-11-13 | 17923/0252 | $250000 |
| DEWEY, MARTIN J | 2003-11-07 | 17902/0064 | $1 |
| HENITZ, DIANA L | 2001-10-11 | 14317/0336 | $1 |
| DEWEY, MARTIN J | 2001-10-11 | 14317/0334 | $1 |
| DEWEY, MARTIN J & MARTHA J | 2001-10-11 | 14317/0332 | $1 |
| HENITZ, DIANA L TR | 1985-10-15 | 4759/0231 | $1 |
| DEWEY, MARTIN J & MARTHA J | 1980-02-15 | 3058/0112 | $0 |
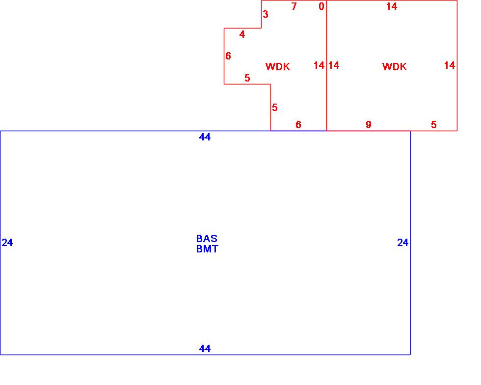
| As Built Cards:Click card # to view: | Card #1 | | Card #2 | |

| B2N | Barn-any 2nd story area | FPC | Open Porch Concrete Floor | REF | Reference Only |
| BAS | First Floor, Living Area | FTS | Third Story Living Area (Finished) | SOL | Solarium |
| BMT | Basement Area (Unfinished) | FUS | Second Story Living Area (Finished) | SPE | Pool Enclosure |
| BRN | Barn | GAR | Garage | TQS | Three Quarters Story (Finished) |
| CAN | Canopy | GAZ | Gazebo | UAT | Attic Area (Unfinished) |
| CLP | Loading Platform | GRN | Greenhouse | UHS | Half Story (Unfinished) |
| FAT | Attic Area (Finished) | GXT | Garage Extension Front | UST | Utility Area (Unfinished) |
| FCP | Carport | KEN | Kennel | UTQ | Three Quarters Story (Unfinished) |
| FEP | Enclosed Porch | MZ1 | Mezzanine, Unfinished | UUA | Unfinished Utility Attic |
| FHS | Half Story (Finished) | PRG | Pergola | UUS | Full Upper 2nd Story (Unfinished) |
| FOP | Open or Screened in Porch | PRT | Portico | WDK | Wood Deck |
| PTO | Patio | ||||
Building |
Details |
Land |
|||
| Building value | $ 241,600 | Bedrooms | 3 Bedrooms | USE CODE | 1010 |
| Replacement Cost | $298,281 | Bathrooms | 1 Full-0 Half | Lot Size (Acres) | 0.23 |
| Model | Residential | Total Rooms | 5 Rooms | Appraised Value | $ 146,700 |
| Style | Ranch | Heat Fuel | Gas | Assessed Value | $ 146,700 |
| Grade | Average Minus | Heat Type | Hot Air | ||
| Year Built | 1979 | AC Type | None | ||
| Effective depreciation | 19 | Interior Floors | Carpet | ||
| Stories | 1 Story | Interior Walls | Drywall | ||
| Living Area sq/ft | 1,056 | Exterior Walls | Wood Shingle | ||
| Gross Area sq/ft | 2,425 | Roof Structure | Gable/Hip | ||
| Roof Cover | Asph/F Gls/Cmp | ||||
| Code | Description | Units/SQ ft | Appraised Value | Assessed Value |
| FPL1 | Fireplace 1 story | 1 | $ 4,100 | $ 4,100 |
| BRR | Bsmt Rec Rm-Average | 600 | $ 3,900 | $ 3,900 |
| WDCK | Wood Decking w/railings | 196 | $ 2,700 | $ 2,700 |
| BMT | Basement-Unfinished | 1056 | $ 22,300 | $ 22,300 |
| WDC | Wood Deck w/o railings | 117 | $ 2,000 | $ 2,000 |