Appraised Value | Assessed Value | |
Building Value | $ 216,100 | $ 216,100 |
Extra Features | $ 30,200 | $ 30,200 |
Outbuildings | $ 3,300 | $ 3,300 |
Land Value | $ 134,100 | $ 134,100 |
Totals | $ 383,700 | $ 383,700 |
2025
Community Preservation Act Tax $ 79.89 Hyannis FD Tax (Commercial) $ 0 Hyannis FD Tax (Residential) $ 894.02 Town Tax (Commercial) $ 0 Town Tax (Residential) $ 2,662.88 Total: $ 3,636.79 |
2024
Community Preservation Act Tax $ 76.15 Hyannis FD Tax (Commercial) $ 0 Hyannis FD Tax (Residential) $ 916.08 Town Tax (Commercial) $ 0 Town Tax (Residential) $ 2,538.31 Total: $ 3,530.54 |
Owner: | Sale Date | Book/Page: | Sale Price: |
SOUZA, PEDRO | 2018-11-28 | 31690/0259 | $249900 |
CHRISTIANA TRUST, TR | 2017-11-07 | 30882/0053 | $171000 |
GINO, SAMUEL | 2005-04-20 | 19739/0146 | $259000 |
WHEELER, GEOFFREY A | 1997-09-04 | 2977/0007 | $0 |
PARON, FORREST E | 1994-06-15 | 9263/0078 | $71900 |
DUQUETTE, JOHN P & SUSAN M | 1988-06-15 | 6331/0224 | $103000 |
BROCKELBANK, GEORGE W ETAL | 1985-04-15 | 4502/0096 | $64900 |
As Built Cards:Click card # to view: | Card #1 | | Card #2 | | Card #3 | | Card #4 | |
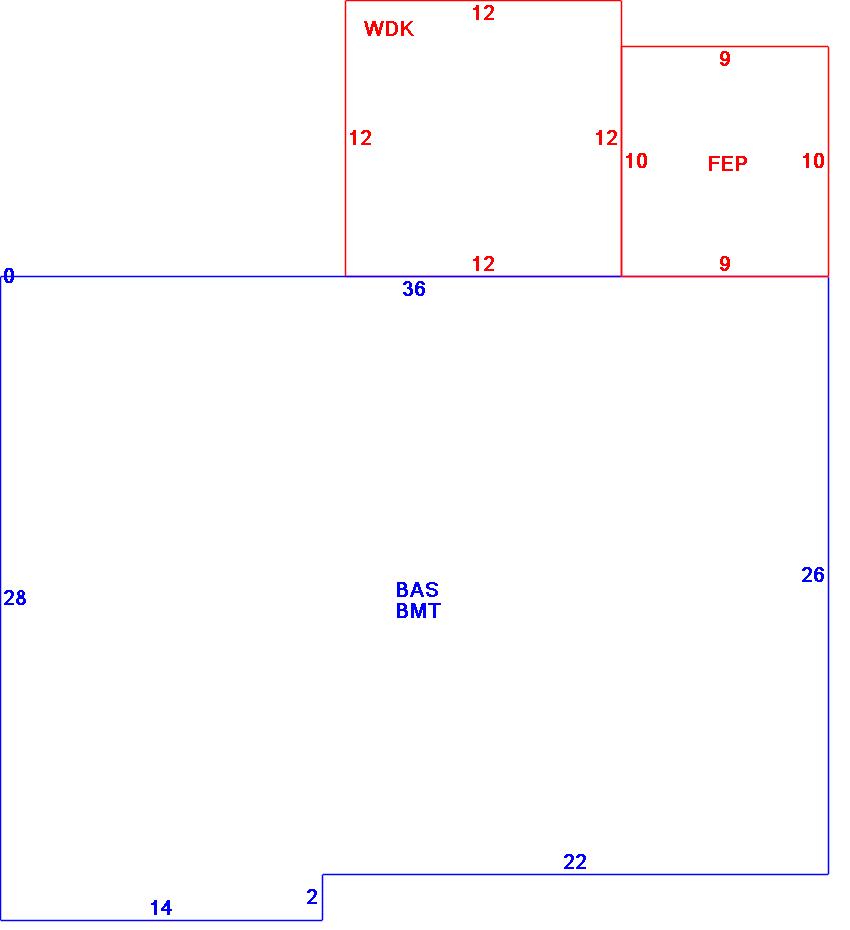
B2N | Barn-any 2nd story area | FPC | Open Porch Concrete Floor | REF | Reference Only |
BAS | First Floor, Living Area | FTS | Third Story Living Area (Finished) | SOL | Solarium |
BMT | Basement Area (Unfinished) | FUS | Second Story Living Area (Finished) | SPE | Pool Enclosure |
BRN | Barn | GAR | Garage | TQS | Three Quarters Story (Finished) |
CAN | Canopy | GAZ | Gazebo | UAT | Attic Area (Unfinished) |
CLP | Loading Platform | GRN | Greenhouse | UHS | Half Story (Unfinished) |
FAT | Attic Area (Finished) | GXT | Garage Extension Front | UST | Utility Area (Unfinished) |
FCP | Carport | KEN | Kennel | UTQ | Three Quarters Story (Unfinished) |
FEP | Enclosed Porch | MZ1 | Mezzanine, Unfinished | UUA | Unfinished Utility Attic |
FHS | Half Story (Finished) | PRG | Pergola | UUS | Full Upper 2nd Story (Unfinished) |
FOP | Open or Screened in Porch | PRT | Portico | WDK | Wood Deck |
PTO | Patio | ||||
Building |
Details |
Land |
|||
Building value | $ 216,100 | Bedrooms | 2 Bedrooms | USE CODE | 1010 |
Replacement Cost | $277,039 | Bathrooms | 1 Full-0 Half | Lot Size (Acres) | 0.25 |
Model | Residential | Total Rooms | 4 Rooms | Appraised Value | $ 134,100 |
Style | Ranch | Heat Fuel | Gas | Assessed Value | $ 134,100 |
Grade | Average Minus | Heat Type | Hot Air | ||
Year Built | 1972 | AC Type | None | ||
Effective depreciation | 22 | Interior Floors | Hardwood | ||
Stories | 1 Story | Interior Walls | Drywall | ||
Living Area sq/ft | 964 | Exterior Walls | Wood Shingle | ||
Gross Area sq/ft | 2,162 | Roof Structure | Gable/Hip | ||
Roof Cover | Asph/F Gls/Cmp | ||||
Code | Description | Units/SQ ft | Appraised Value | Assessed Value |
FPL1 | Fireplace 1 story | 1 | $ 3,900 | $ 3,900 |
WDCK | Wood Decking w/railings | 144 | $ 1,300 | $ 1,300 |
BMT | Basement-Unfinished | 964 | $ 20,200 | $ 20,200 |
FEP | Enclosed porch-roof,ceiling | 90 | $ 6,100 | $ 6,100 |
SHED | Shed | 120 | $ 2,000 | $ 2,000 |