
| Appraised Value | Assessed Value | |
| Building Value | $ 243,600 | $ 243,600 |
| Extra Features | $ 21,700 | $ 21,700 |
| Outbuildings | $ 9,700 | $ 9,700 |
| Land Value | $ 160,500 | $ 160,500 |
| Totals | $ 435,500 | $ 435,500 |
| 2025
Community Preservation Act Tax $ 90.67 Hyannis FD Tax (Commercial) $ 0 Hyannis FD Tax (Residential) $ 1,014.72 Town Tax (Commercial) $ 0 Town Tax (Residential) $ 3,022.37 Total: $ 4,127.76 |
2024
Community Preservation Act Tax $ 86.02 Hyannis FD Tax (Commercial) $ 0 Hyannis FD Tax (Residential) $ 1,034.88 Town Tax (Commercial) $ 0 Town Tax (Residential) $ 2,867.48 Total: $ 3,988.38 |
| Owner: | Sale Date | Book/Page: | Sale Price: |
| WINKLER, GREGORY J & MAUREEN M TRS | 2024-04-30 | 36338/43 | $1 |
| WINKLER, GREGORY J & MAUREEN M | 2017-02-15 | 30300/0318 | $227500 |
| TWOMEY, KAREN COSTIN & TIMOTHY | 2001-09-28 | 14284/0218 | $155000 |
| SWETISH, RANDALL G ET AL | 1989-11-15 | 6956/0098 | $1 |
| SWETISH, RANDALL G & | 1987-04-15 | 5659/0308 | $1 |
| SWETISH, RANDALL G | 1986-12-15 | 5501/0296 | $120000 |
| HENSON, LUCKY J &MARGARET M | 1976-05-13 | 2337/0283 | $0 |
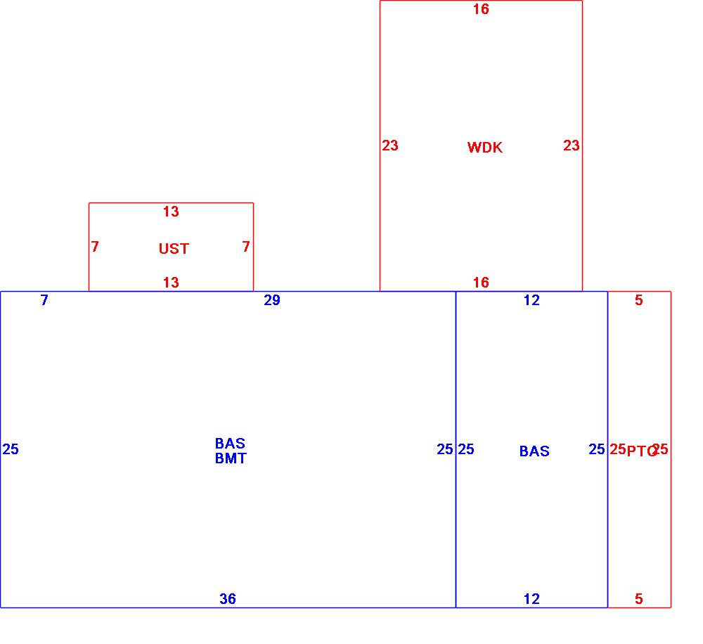
| As Built Cards:Click card # to view: | Card #1 | | Card #2 | | Card #3 | | Card #4 | |

| B2N | Barn-any 2nd story area | FPC | Open Porch Concrete Floor | REF | Reference Only |
| BAS | First Floor, Living Area | FTS | Third Story Living Area (Finished) | SOL | Solarium |
| BMT | Basement Area (Unfinished) | FUS | Second Story Living Area (Finished) | SPE | Pool Enclosure |
| BRN | Barn | GAR | Garage | TQS | Three Quarters Story (Finished) |
| CAN | Canopy | GAZ | Gazebo | UAT | Attic Area (Unfinished) |
| CLP | Loading Platform | GRN | Greenhouse | UHS | Half Story (Unfinished) |
| FAT | Attic Area (Finished) | GXT | Garage Extension Front | UST | Utility Area (Unfinished) |
| FCP | Carport | KEN | Kennel | UTQ | Three Quarters Story (Unfinished) |
| FEP | Enclosed Porch | MZ1 | Mezzanine, Unfinished | UUA | Unfinished Utility Attic |
| FHS | Half Story (Finished) | PRG | Pergola | UUS | Full Upper 2nd Story (Unfinished) |
| FOP | Open or Screened in Porch | PRT | Portico | WDK | Wood Deck |
| PTO | Patio | ||||
Building |
Details |
Land |
|||
| Building value | $ 243,600 | Bedrooms | 3 Bedrooms | USE CODE | 1010 |
| Replacement Cost | $348,000 | Bathrooms | 1 Full-0 Half | Lot Size (Acres) | 0.17 |
| Model | Residential | Total Rooms | 6 Rooms | Appraised Value | $ 160,500 |
| Style | Ranch | Heat Fuel | Gas | Assessed Value | $ 160,500 |
| Grade | Average | Heat Type | Hot Water | ||
| Year Built | 1950 | AC Type | None | ||
| Effective depreciation | 30 | Interior Floors | CarpetHardwood | ||
| Stories | 1 Story | Interior Walls | Drywall | ||
| Living Area sq/ft | 1,200 | Exterior Walls | Wood Shingle | ||
| Gross Area sq/ft | 2,684 | Roof Structure | Gable/Hip | ||
| Roof Cover | Asph/F Gls/Cmp | ||||
| Code | Description | Units/SQ ft | Appraised Value | Assessed Value |
| FPL1 | Fireplace 1 story | 1 | $ 3,500 | $ 3,500 |
| CAB1 | Cabin-Minimal | 240 | $ 5,100 | $ 5,100 |
| UST | Utility Storage-attached | 91 | $ 900 | $ 900 |
| BMT | Basement-Unfinished | 900 | $ 17,300 | $ 17,300 |
| WDCC | Deck composite no railings | 368 | $ 4,000 | $ 4,000 |
| PAT1 | Patio- Average | 125 | $ 600 | $ 600 |