
| Appraised Value | Assessed Value | |
| Building Value | $ 293,200 | $ 293,200 |
| Extra Features | $ 33,400 | $ 33,400 |
| Outbuildings | $ 1,100 | $ 1,100 |
| Land Value | $ 135,800 | $ 135,800 |
| Totals | $ 463,500 | $ 463,500 |
| 2025
Community Preservation Act Tax $ 96.50 Hyannis FD Tax (Commercial) $ 0 Hyannis FD Tax (Residential) $ 1,079.96 Town Tax (Commercial) $ 0 Town Tax (Residential) $ 3,216.69 Total: $ 4,393.15 |
2024
Community Preservation Act Tax $ 91.85 Hyannis FD Tax (Commercial) $ 0 Hyannis FD Tax (Residential) $ 1,104.96 Town Tax (Commercial) $ 0 Town Tax (Residential) $ 3,061.66 Total: $ 4,258.47 |
| Owner: | Sale Date | Book/Page: | Sale Price: |
| CAPEN, RONALD W & NANCY L TRS | 2024-07-19 | 36476/295 | $1 |
| CAPEN, RONALD W & NANCY L | 2010-11-18 | 25011/0104 | $152000 |
| HSBC BANK USA | 2009-12-02 | 24207/0014 | $182500 |
| BARROSO, SABINO | 2003-07-15 | 17266/0089 | $250000 |
| HOULIHAN, STEVEN F | 1997-09-02 | 10929/0063 | $90000 |
| WOLFINGER, THOMAS J TR | 1988-06-27 | 6324/0056 | $115000 |
| KOUMBOURIS, PATRICIA | 1988-06-01 | 6286/0246 | $1 |
| KOUMBOURIS, DEMETRIOS | 1983-09-23 | 3875/0243 | $58000 |
| As Built Cards:Click card # to view: | Card #1 | | Card #2 | |

| B2N | Barn-any 2nd story area | FPC | Open Porch Concrete Floor | REF | Reference Only |
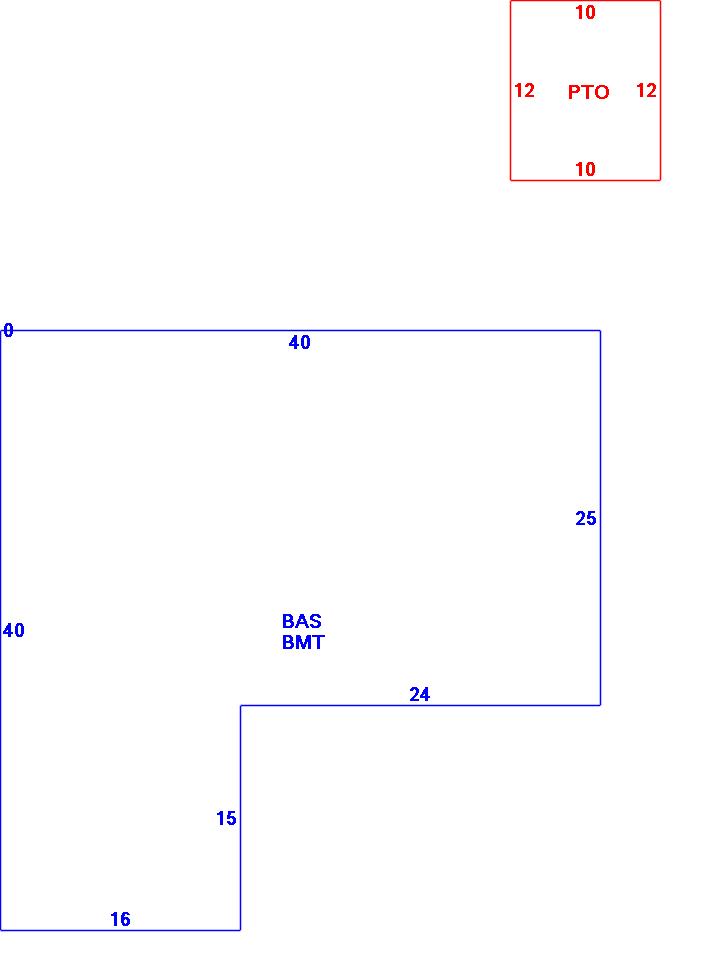
| BAS | First Floor, Living Area | FTS | Third Story Living Area (Finished) | SOL | Solarium |
| BMT | Basement Area (Unfinished) | FUS | Second Story Living Area (Finished) | SPE | Pool Enclosure |
| BRN | Barn | GAR | Garage | TQS | Three Quarters Story (Finished) |
| CAN | Canopy | GAZ | Gazebo | UAT | Attic Area (Unfinished) |
| CLP | Loading Platform | GRN | Greenhouse | UHS | Half Story (Unfinished) |
| FAT | Attic Area (Finished) | GXT | Garage Extension Front | UST | Utility Area (Unfinished) |
| FCP | Carport | KEN | Kennel | UTQ | Three Quarters Story (Unfinished) |
| FEP | Enclosed Porch | MZ1 | Mezzanine, Unfinished | UUA | Unfinished Utility Attic |
| FHS | Half Story (Finished) | PRG | Pergola | UUS | Full Upper 2nd Story (Unfinished) |
| FOP | Open or Screened in Porch | PRT | Portico | WDK | Wood Deck |
| PTO | Patio | ||||
Building |
Details |
Land |
|||
| Building value | $ 293,200 | Bedrooms | 3 Bedrooms | USE CODE | 1010 |
| Replacement Cost | $357,529 | Bathrooms | 2 Full-0 Half | Lot Size (Acres) | 0.31 |
| Model | Residential | Total Rooms | 6 Rooms | Appraised Value | $ 135,800 |
| Style | Ranch | Heat Fuel | Gas | Assessed Value | $ 135,800 |
| Grade | Average | Heat Type | Hot Water | ||
| Year Built | 1972 | AC Type | None | ||
| Effective depreciation | 18 | Interior Floors | Carpet | ||
| Stories | 1 Story | Interior Walls | Drywall | ||
| Living Area sq/ft | 1,240 | Exterior Walls | Wood Shingle | ||
| Gross Area sq/ft | 2,600 | Roof Structure | Gable/Hip | ||
| Roof Cover | Asph/F Gls/Cmp | ||||
| Code | Description | Units/SQ ft | Appraised Value | Assessed Value |
| FPL1 | Fireplace 1 story | 1 | $ 4,100 | $ 4,100 |
| BRR | Bsmt Rec Rm-Average | 310 | $ 2,000 | $ 2,000 |
| PAT2 | Patio-Good | 120 | $ 1,100 | $ 1,100 |
| BMT | Basement-Unfinished | 1240 | $ 25,200 | $ 25,200 |
| FPLG | Gas Fireplace-Direct Vent | 1 | $ 2,100 | $ 2,100 |
| SOL1 | Solar PV Panels 12 - 24 | 17 | $ 0 | $ 0 |