Appraised Value | Assessed Value | |
Building Value | $ 158,000 | $ 158,000 |
Extra Features | $ 0 | $ 0 |
Outbuildings | $ 200 | $ 200 |
Land Value | $ 134,200 | $ 134,200 |
Totals | $ 292,400 | $ 292,400 |
2025
Community Preservation Act Tax $ 60.88 Hyannis FD Tax (Commercial) $ 0 Hyannis FD Tax (Residential) $ 681.29 Town Tax (Commercial) $ 0 Town Tax (Residential) $ 2,029.26 Total: $ 2,771.43 |
2024
Community Preservation Act Tax $ 58.33 Hyannis FD Tax (Commercial) $ 0 Hyannis FD Tax (Residential) $ 701.76 Town Tax (Commercial) $ 0 Town Tax (Residential) $ 1,944.46 Total: $ 2,704.55 |
Owner: | Sale Date | Book/Page: | Sale Price: |
PMG REALTY INC | 2021-03-26 | 33944/244 | $245000 |
FORD, JANICE E | 1984-05-15 | 4119/0320 | $100000 |
TRIPLETT, NAPOLEON & I M | 2154/0039 | $0 |
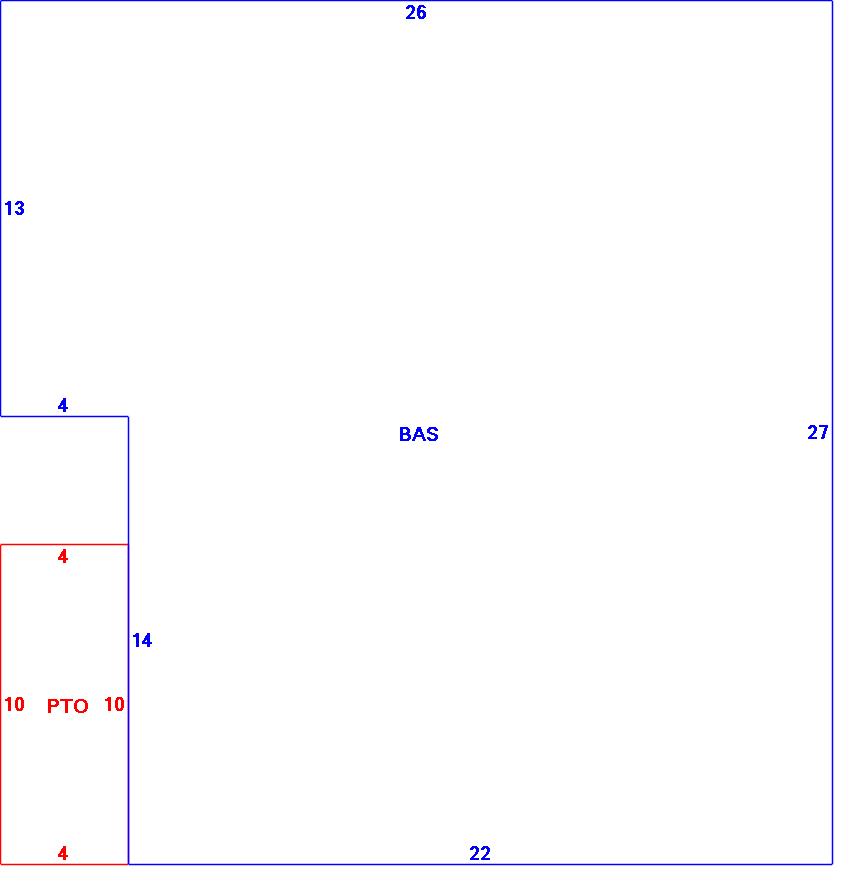
AsBuilt Card N/A
This property contains multiple sketches.
B2N | Barn-any 2nd story area | FPC | Open Porch Concrete Floor | REF | Reference Only |
BAS | First Floor, Living Area | FTS | Third Story Living Area (Finished) | SOL | Solarium |
BMT | Basement Area (Unfinished) | FUS | Second Story Living Area (Finished) | SPE | Pool Enclosure |
BRN | Barn | GAR | Garage | TQS | Three Quarters Story (Finished) |
CAN | Canopy | GAZ | Gazebo | UAT | Attic Area (Unfinished) |
CLP | Loading Platform | GRN | Greenhouse | UHS | Half Story (Unfinished) |
FAT | Attic Area (Finished) | GXT | Garage Extension Front | UST | Utility Area (Unfinished) |
FCP | Carport | KEN | Kennel | UTQ | Three Quarters Story (Unfinished) |
FEP | Enclosed Porch | MZ1 | Mezzanine, Unfinished | UUA | Unfinished Utility Attic |
FHS | Half Story (Finished) | PRG | Pergola | UUS | Full Upper 2nd Story (Unfinished) |
FOP | Open or Screened in Porch | PRT | Portico | WDK | Wood Deck |
PTO | Patio | ||||
Building |
Details |
Land |
|||
Building value | $ 158,000 | Bedrooms | 2 Bedrooms | USE CODE | 1090 |
Replacement Cost | $130,815 | Bathrooms | 1 Full-0 Half | Lot Size (Acres) | 0.13 |
Model | Residential | Total Rooms | 4 Rooms | Appraised Value | $ 134,200 |
Style | Cottage | Heat Fuel | Gas | Assessed Value | $ 134,200 |
Grade | Average | Heat Type | Typical | ||
Year Built | 1940 | AC Type | None | ||
Effective depreciation | 31 | Interior Floors | Pine/Soft Wood | ||
Stories | 1 Story | Interior Walls | Plastered | ||
Living Area sq/ft | 646 | Exterior Walls | Wood Shingle | ||
Gross Area sq/ft | 686 | Roof Structure | Gable/Hip | ||
Roof Cover | Asph/F Gls/Cmp | ||||
Code | Description | Units/SQ ft | Appraised Value | Assessed Value |
PAT1 | Patio- Average | 40 | $ 200 | $ 200 |